Jak by měl vypadat nový obytný dům v Naději. (Po jeho dostavění.)

Jak by měl vypadat nový obytný dům v Naději.
(Po jeho dostavění.)
4. dubna obdržel náš Spolek Rozhodnutí od Stavebního úřadu ve Cvikově, o dodatečném povolení změny stavby: před jejím dokončením v rozsahu projektové dokumentace, ověřené při stavebním řízení, ze které vyplývají hlavní technické detaily provedení a umístění stavby, členění na objekty, užívání jednotlivých prostor, ale i rozsah záboru staveniště, organizace výstavby a splnění požadavků daných zvláštními předpisy.
Po dlouhou dobu probíhajícího stavebního řízení k žádosti o povolení stavby nebylo známo, mimo původní skici roubené budovy, jak bude nová budova skutečně vypadat. S ohledem na autorská práva, odmítl Stavební úřad takové obrázky Spolku z úřední stavební dokumentace poskytnout. Požádali jsme zplnomocněného zástupce stavebníka pana Bc. Miloše Syrového a ten nám zaslal potřebné informace pro zveřejnění ve Zpravodaji Trávník a Naděje, ze to panu Syrovému děkujeme.
  
 
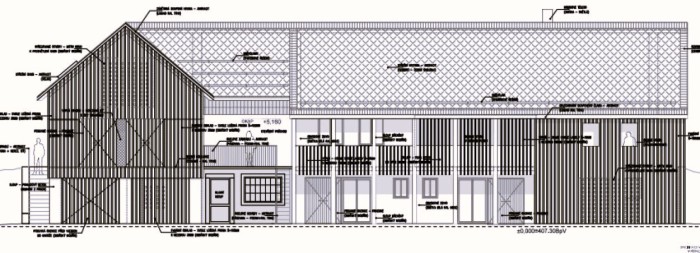
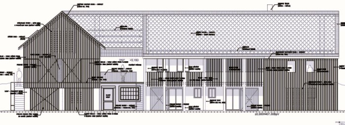
Obr. č. 1 a č. 2
Toto jsou dva pohledy na uvedenou stavbu v průběhu od loňského srpna do března r. 2024, kdy byla stavba zastavena a probíhaly pouze zabezpečovací práce. 
Podle současného projektu architekta Petra Stolína, bude původní převážně betonový „skelet“ (obr. č. 1) prakticky po celém obvodu překrytý dřevěnou fasádou z prken sibiřského modřínu (obr. č. 4) o šířce 180mm s mezerou 30mm stejného podkladu. Zjednodušeně řečeno, skelet bude zapouzdřen do dřevěného obalu, aby splnil důležitou podmínku charakteru staveb v Lužických horách. Veškerý dřevěný modřínový povrch, včetně trámů a sloupů, bude opatřen světle šedohnědým lazurovým nátěrem v patině starého - stařeného dřeva. (Odstín se ještě upřesní.)
Z jihozápadního směru (od silničky obr. č. 3) je pohled do příjezdového dvora, který bude od silnice oddělený vyšším laťovým plotem v zelené barvě a asi porostlý pnoucí zelení. Původní dvě budovy, zapuštěné do svahu na obou stranách s tzv. anglickými dvorky, jsou propojeny spojovacím „krkem“. Ve vyzděném přízemí jsou hlavní dveře do objektu. V patře je volná průchozí a průhledová terasa do zahrady v pozadí se zábradlím bez oken, krytá střechou.

Obr. č. 3
Levé průčelí první kolmé budovy je opatřeno dřevěnou fasádou na trámové konstrukci. V betonové spodní části je vlevo garáž, krytá posuvnou okenicí, vpravo je dřevěný obklad stejného rozměru s kruhovými otvory, k prosvětlení okna za obkladem.
Podíváte-li se na výřez fotografie levé části střechy hrubé stavby (obr. č. 5), tam střecha přesahuje zeď více jak o metr. Na první krokev tohoto krovu bude nasedat nosná konstrukce horní části dřevěné fasády, která je asi o jeden metr předsunutá před původní zeď (o přesah střechy). Po odsunutí okenic v průčelí se otevře ochoz před velkým oknem, který je celý krytý hustým jemným nerezovým pletivem místo zábradlí, a také k ochraně před ptáky. Také v předsunutém štítu je dřevěná fasáda opatřená kruhovými otvory k prosvětlení okna, které je v pozadí ve stěně zděného štítu.
  
  
Obr. č. 4 a č. 5
Celá pravá boční strana této levé budovy (obr. č. 6) je krytým ochozem ve stejné šířce, v prvním patře jsou opět otvory v místě okna v pozadí ve stěně budovy.
Celý trakt druhé budovy vpravo (obr. č. 3) je v rovině patra od terasy opatřen šestidílnou pavlačí, stojící na dřevěných sloupech s šířkou stejnou, jako je levý ochoz. Stejně, jako jsou předsunuté krokve na výřezu obr. č. 5.
Celý objekt, včetně spojovacího krčku a pavlače, je zděný. V přízemí pod pavlačí jsou dvě francouzská okna, krytá posuvnou okenicí. 

Obr. č. 3-(opakovaný pro přehlednost)
Mezi čtyřmi sloupy je pavlač opatřena dřevěným lamelovým zábradlím (latě 30mm a mezera 180mm), před dvěma okny ve zděné stěně domu. V prostoru tří dalších navazujících sloupových mezer pokračující pavlače je v nosné betonové zdi zachováno velké okno (na obr. č. 1), které je kryto do výše 90 cm plnou dřevěnou deskou (tzv. záklopem). Celá horní část „roštem“ 30mm modřínových latí (latě 30mm a mezera 180mm).
Od konce pavlače je celá zbývající část budovy opět zakryta předsunutou dřevěnou fasádou, kryjící pokračující ochoz až za roh.  V místě ochozu jsou dvě otevřená okna předsunutá před okny ve zdi budovy. V přízemí jsou překrytá původní okna prosvětlována kruhovými otvory ve fasádě. Po pravé straně budovy není zakreslená betonová zeď anglického dvorku, která je s oknem zakreslená na obr. č. 6.. Dvorek je však vidět rozestavený na obr. č. 2.
.

Obr. č. 6
Z anglických dvorků vedou vnější schodišťové výstupy do zadních částí pozemku.
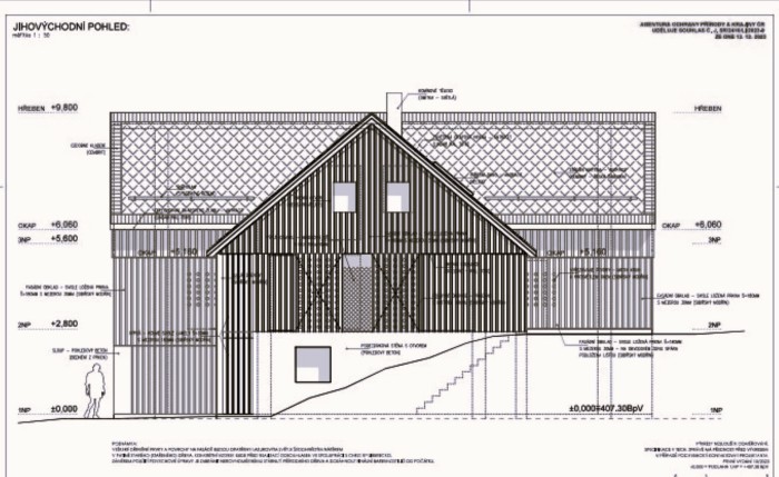
Jihovýchodní průčelí druhé budovy (směrem ke kapličce obr. č. 6) je opět kryto předsunutou dřevěnou fasádou, ve které je zakrytý ochoz, stojící na vnější stěně anglického dvorku. V patře se po otevření posuvných okenic otevře balkon s francouzskými dveřmi opět v rovině fasády, krytý jemným hustým nerezovým pletivem a s oknem. Ve štítu jsou opět před původní okna předsunuté otvory ve fasádě, ale bez sítě?

Obr. č. 7
Ze strany severovýchodního pohledu od zahrady (od Hvozdu obr. č. 7), která je napojena na budovu v rovině podlahy prvého patra, jde o nízký „jednopatrový“ dvojdomek. Zadní štítová stěna první budovy je opět předsunutá a v místě dvou oken tvoří lodžii, v dolní části zakrytou opět pevnou dřevěnou záklopovou deskou. V této druhé budově vedle terasy, na délku pavlače (z druhé strany budovy), bude prosklené okno, které se bude zakrývat posuvnými okenicemi. Rozměrově je velké okno členěné pouze dřevěnými sloupy, ale pravděpodobně jsou sloupy předsunuté před oknem. Vlevo před terasou je naznačeno další skleněné okno, u kterého je poznámka „v druhém plánu“ není jasné, o co jde. Levá strana s okny je zděná, opět s okenicemi.
Posledním vyobrazením budovy je severozápadní pohled (od Milštejnu obr. č. 8). Z této strany je opláštění provedené na trámové konstrukci, není zde ochoz. Díváme se na do svahu zapuštěný levý anglický dvorek, kde svah končí betonovou zdí, na které je ocelové ochranné zábradlí a vnější schodiště do dvorku. Přízemí je zapuštěné do dvorku a celá plocha fasády je pokryta modřínovým dřevem. V patře jsou posuvné okenice, v přízemí jsou okna do dvorku opatřena prosvětlovacími otvory.

Obr. č. 8
Závěrečné řízení k povolení dostavby nového obytného domu v Naději, se zřejmě blíží k závěru. Náš Spolek byl přizván až v závěru řízení jako jeho přímý účastník. V několika vstupech jsme spolu s dalšími účastníky sdělili své závažné připomínky Stavebnímu úřadu ve Cvikově, který stavbu povoluje.
Řízení probíhá dlouho, po celou dobu se jednalo ve skutečnosti o zásadních důležitých prvcích realizace stavby, zejména o velikosti a vzhledu nové budovy, o jejím urbanistickém začlenění do oblasti Lužických hor. Jedinou skutečnou obrazovou představou pro účastníky ze strany obyvatel Naděje a Trávníku byl a je, po téměř dva roky, obraz neforemného skeletu obří rozestavěné budovy, který vidíme na obr. č. 1.
Je těžko uvěřitelné, že při stavbě tak velkého domu se nevedla diskuze podle platného vyobrazení, jak bude budova vypadat. Nová technická dokumentace stavby se schvalovala v říjnu 2023 a požadovaná stanoviska pro povolení stavby se projednávala v prosinci 2023. To však ten rozestavěný betonový skelet již dávno stál.
Pokusili jsme se z několika rozměrových stavebních výkresů vytvořit co možná nejpřesnější trojrozměrný obrázek, jak bude tato nová budova vypadat a jaká technická opatření se k tomu provedla.
Nekomentujeme, jaký dojem tento nový obrázek vytváří.  V této podobě s vysokou pravděpodobností bude nový obytný dům v Naději stát. 
Ponechme si své úsudky na chvíli, kdy ten dům tam bude stát bez lešení a ve své konečné podobě.
Administrátor 
Trávnicko – Nadějského zpravodaje
V Trávníku a Praze 19. dubna 2024